Best Placement Repeater
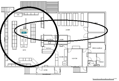
Place the Main Module so central as possibel in the middle of the radius from the sensors placements
The repeter module reaches sensor signals within a 40m range from the center of a radius.
The Repeter module is forwarding the received sensor data 3 times stronger than a normal sensor
Lokalevurdering

